Schöne Mietwohnung in Bad St. Leonhard
Sie präsentiert sich in sehr gutem Zustand, erstreckt sich über zwei Geschosse und ist wie folgt aufgeteilt:
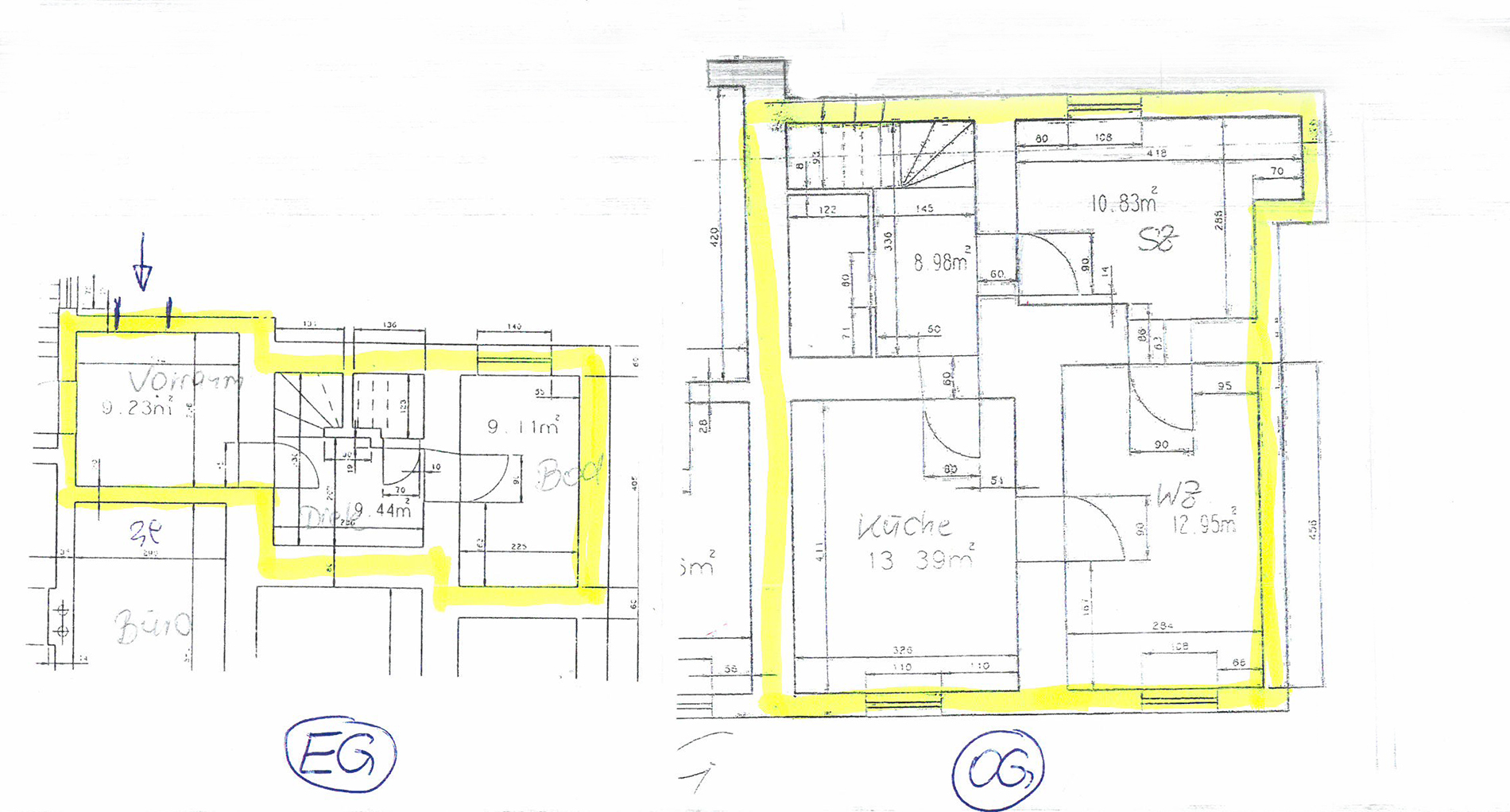
Vorraum
Badezimmer/WC
Küche
Wohnzimmer
Schlafzimmer
Die historischen Mauern in Verbindung mit den Gewölben geben der Wohnung einen exklusiven Charme. Küche und Bad sind möbliert, alle Räume sind in einem tadellosen Zustand. Die Heizung erfolgt mittels Fernwärme, die Betriebs- und Heizkosten sind im Mietpreis inkludiert. Sollten sie Interesse an dieser außergewöhnlichen Wohnung haben vereinbare ich gerne einen Besichtigungstermin.
Herbert Müller
Staatlich geprüfter Immobilienmakler und Bauträger
Geschäftsführender Gesellschafter
Mobil: 0664 11 37 183
E-Mail: h.mueller@kt-immo.at
Objektinformation
| Objektnummer: | 1821 |
| Lage: | Wolfsberg / Bad St. Leonhard |
| Fläche: | 70 m² |
Kosten (zzgl. Nebenkosten)
| Kaufpreis: | € 650,-- |
Heizung / Energieausweis
| Heizungsquelle: | Fernwärme |
| Heizart: | Zentralheizung |






